1108 N La Brea Ave, Inglewood, CA 90302 - Recording Studio - Addition and Alteration
GKA Architects provided measured drawings, schematic design, construction documentation, and construction phase services for the addition and alteration of a recording studio Inglewood, CA
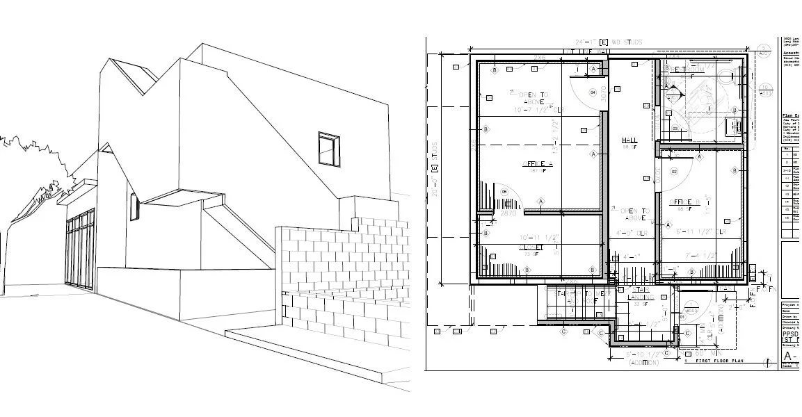
Project Information
Location: 1108 N LA BREA AVE, INGLEWOOD, CA
Project Area [Building]: 700 sf (front bldg) 800 sf rear building
Occupancy: B [Business
Number of Floors: 1+Mezz
Units: 2
Construction Type: V-B
Project Year: 2018-2022
Phases: EX, SD, CD, CA
1108 North La Brea - 2018 (Before)
Schematic Design and Construction Documents
Construction - Framing
Construction - Framing
1108 North La Brea - 2022 (After)
1108 North La Brea - 2022 (After)
