11780 W Pico Blvd, West Los Angeles, CA - Office - Architectural Services
GKA provided architectural field verification, measured drawings, and office space planning for the interior alteration of this 800sf office located in West Los Angeles, California.
Location - Aerial View
Project Information
Location: 11780 W PICO BLVD, LOS ANGELES, CA 90064
Building Size: 3,600 sf +/-
Project Size: 800 sf
Project Year: 2008
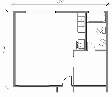
Existing Schematic Floor Plan
Proposed Schematic Floor Plan
