Parks and Recreation - Multi-Use Center - Thousand Oaks, California
Description
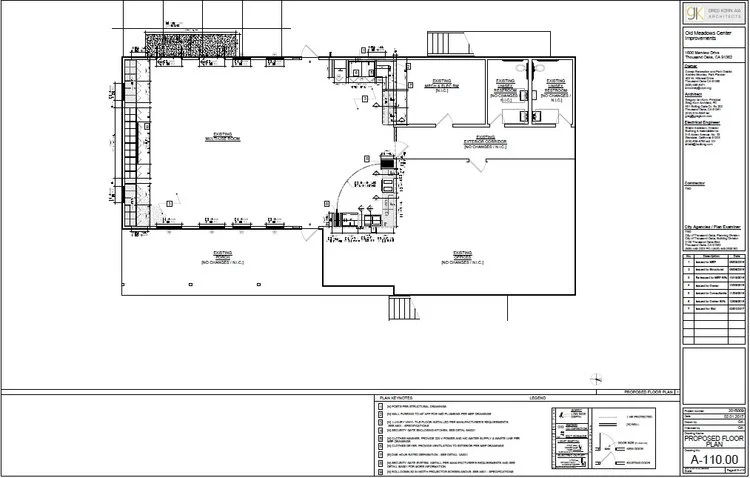
GKA Architects and engineering subconsultants were commissioned by the Conejo Recreation and Park District to design interior and exterior improvements to the Old Meadows Center Recreation Building, located in Old Meadows Park in Thousand Oaks, California. Improvements include a full gut renovation of the multi-use room, new kitchen, entertainment center, and new doors, patio, and windows.
Project Information
Location: 1600 Marview Drive, Thousand Oaks, CA
Building Size: 4,800 sf (estimated)
Number of Floors: 2
Residential Units: 0; Commercial Units: 1
Project Size: 1,500 sf
Construction Type: V-B
Cost: $300,000 (Est)
Year Built: 1966
Project Year: 2017
Consultants: PSFEG Inc [STR], Budlong & Associates [MEP]
Contractor: EJS Construction
Kitchen - After
Kitchen - Before
Entertainment Center - After
Entertainment Center - Before
Ceiling Truss and Lighting - After
Ceiling Truss and Lighting - Before
Ceiling Truss and Lighting - After 2
Ceiling Truss and Lighting - Before 2
Floor Plan
Interior Elevations
