824 E Main, Santa Paula, cA - Mixed Use Apartment Property - New Building - Architectural Services
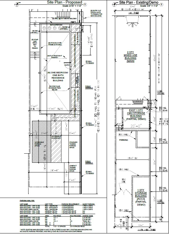
GKA Architects provided architectural design, permit drawings, and planning department interface for the proposed addition of a single dwelling unit to an existing mixed use apartment and retail property in downtown Santa Paula, California.
Project Information
Location: 824 E. MAIN, SANTA PAULA, CALIFORNIA 93060
Building Floor Area: 3,600 sf +/-
Project Area [Demised]: 600 sf
Project Year: 2015
