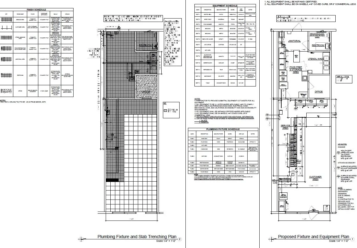
12805 Crenshaw Blvd, Hawthorne, CA - Restaurant - Architectural Services

GKA Architects provided architectural services including field measurements, existing conditions drawings, and permit drawings for a restaurant interior alteration project in Hawthorne, California.

Project Information

Location: 12805 Crenshaw Blvd, Hawthone, CA

Building Size: 17000 sf

Project Size: 800 sf

Project Year: 2017