335 Mamaroneck Avenue, Mamaroneck, NY - Retail - Architectural Services
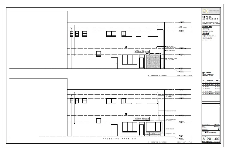
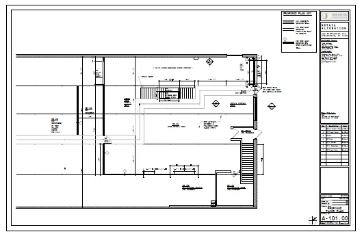
GKA Architects provided measured drawings, schematic design, construction documents, and construction phase services for the addition of a basement/grade level bicycle shop to an existing to retail toy store and bike shop in Mamaroneck, New York.
Project Information
Location: 335 Mamaroneck Avenue, Mamaroneck, NY
Building Size: 15,352 sf
Project Size: 4,500 sf +/-
Project Year: 2017-2018
Construction Photo
Construction Photo
"Before" Photo
Bicycle Shop Floor Plan
Bicycle Shop Elevations
