31840 Village Center Rd, Westlake Village, CA - Office - Architectural Services

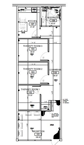
GKA Architects provided architectural services including field measurements, existing conditions drawings, schematic design, and permit drawings for an office interior alteration project in Westlake Village, CA.

Project Information

Location: Westlake Village, CA

Building Floor Area: 74,314 sf +/-

Project Area [Demised]: 800 sf

Project Year: 2018