7817 Lankershim Blvd, North Hollywood, CA - Public Housing Facility - Shop Drawings
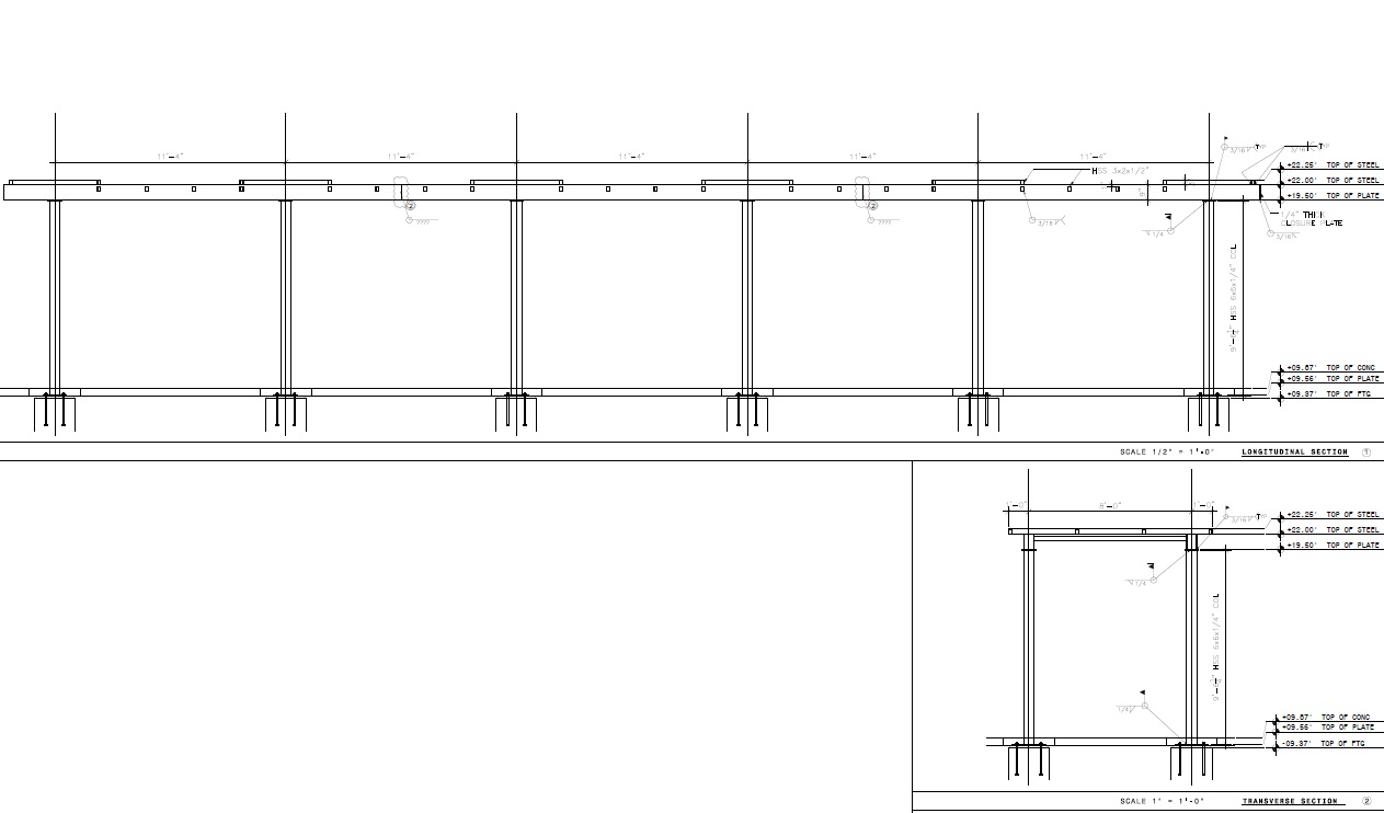
GKA Architects provided architectural services including shop drawings and construction phase services for a new trellisway and permiter fencing in a public housing facility in North Hollywood, CA.
Project Information
Location: 7817 LANKERSHIM BLVD, NORTH HOLLYWOOD, CA 91605
Building Size: 28,190 sf (BLDG 1) 13,960 (BLDG 2)
Number of Floors: 3
Residential Units: 63
Project Size: 1,200 sf +/-
Configuration: Multi-Family Residential
Zoning: C2-1VL-CUGU
Years Built / Project Year: 1967, 1998 / 2018
Phase: EXF, SD
