Services
Projects
Factory/ Warehouse - Industrial [F] [H] [S]
Office - Low/Mid Rise [B Occupancy]
Office - High Rise [B]
Office - Medical [B]
Video Production & Recording Studios [A] [B]
Residential - Hotel [R1]
Residential - Multi-Family [R2]
Restaurant [A]
Retail [M]
TESTIMONIALS
Locations
REQUEST A PROPOSAL
Menu
Simple Solutions to Complex Projects
Services
Projects
Factory/ Warehouse - Industrial [F] [H] [S]
Office - Low/Mid Rise [B Occupancy]
Office - High Rise [B]
Office - Medical [B]
Video Production & Recording Studios [A] [B]
Residential - Hotel [R1]
Residential - Multi-Family [R2]
Restaurant [A]
Retail [M]
TESTIMONIALS
Locations
REQUEST A PROPOSAL
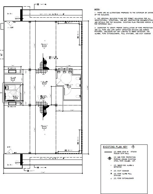
4605 W Pico Blvd, Los Angeles, CA - Day Care - Architectural Services
GKA Architects provided measured drawings, schematic design, and construction documents for a day care center in Los Angeles, CA
Project Information
Location: 4605 W Pico Blvd, Los Angeles, CA
Building Floor Area: 2,400 SF
Project Floor Area: Entire
Project Year: 2019
View My Stats