3900 E Thousand Oaks Blvd, Thousand Oaks, CA - Retail - Architectural Services
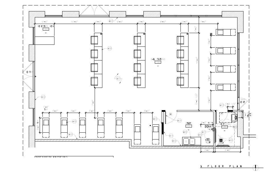
GKA Architects provided measured drawings, schematic design drawings, and construction documents for a nail salon located in a retail building in Thousand Oaks, California.
Location - Aerial View
