Services
Projects
Factory/ Warehouse - Industrial [F] [H] [S]
Office - Low/Mid Rise [B Occupancy]
Office - High Rise [B]
Office - Medical [B]
Video Production & Recording Studios [A] [B]
Residential - Hotel [R1]
Residential - Multi-Family [R2]
Restaurant [A]
Retail [M]
TESTIMONIALS
Locations
REQUEST A PROPOSAL
Menu
Simple Solutions to Complex Projects
Services
Projects
Factory/ Warehouse - Industrial [F] [H] [S]
Office - Low/Mid Rise [B Occupancy]
Office - High Rise [B]
Office - Medical [B]
Video Production & Recording Studios [A] [B]
Residential - Hotel [R1]
Residential - Multi-Family [R2]
Restaurant [A]
Retail [M]
TESTIMONIALS
Locations
REQUEST A PROPOSAL
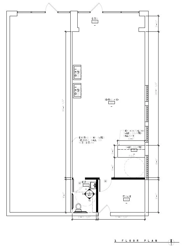
312 E Queen St, Inglewood, CA - Retail - Architectural Services
GKA Architects provided measured drawings, schematic design drawings and construction documents for a Juice Bar in Inglewood, California.
Project Information
Location: 300 E QUEEN ST, INGLEWOOD, CALIFORNIA 90301
Building Floor Area: 21,722 sf
Project Area [Demised]: 900 sf +/-
Project Year: 2022
View My Stats