1 State Street, 24th Floor, New York, NY 10004 - Office - Architectural Services

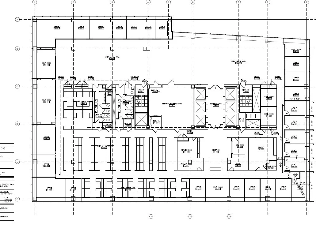
GKA provided architectural field verification, schematic design, and building permit drawings for the interior alteration of an office in the Financial District of New York, New York.

Project Information

Location: 1 STATE STREET PLAZA, NEW YORK, NY 10004

Building Floor Area: 705,782 sf

Project Area: 5,500 sf

Project Year: 2023